東京都板橋区のT様より後付け小上がりのご注文をいただきました。
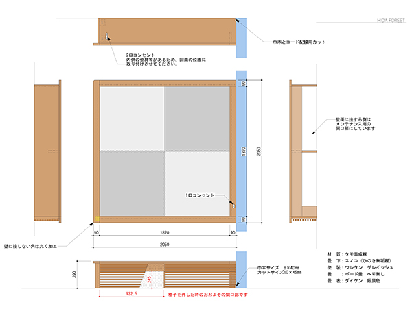
サイズは200×200×高さ39㎝です。
縦・横・高さも1センチ単位で対応可能です。
壁面に接する場合は1ミリ単位で調整します。

グレイッシュと銀鼠色の組み合わせもとても調和した色合わせです。
何度かT様とお打合せして下記図面にて決定し製作に掛かりました。
メール以外にZOOMにてご相談をお受けしています。

リビングの一部に小上がりを設置しました。

| 本 体 | タモ集成材 |
| 畳 下 | ひのきスノコ |
| 塗 装 | ウレタン仕上げ(グレイッシュ) |
| 畳 表 | ダイケン 銀鼠色 |
| 畳 | ボード畳 ヘリ無し畳 |